CS螺旋升降机

CS蜗轮丝杆升降机(螺旋升降机)为方箱壳体,结构紧凑,安装方便,六个面都做到的精确定位,有神奇的积木之美称,丝杆有普通的梯形丝杆和滚珠丝杆两种选择,产品提升力能做到2.5KN-500KN。应用于太阳能,食品,水利等多个行业。
CS方形蜗轮丝杆升降机形式、规格的表示机体规格分为:CS2.5~CS500共9种,提升力依次为2.5KN~500KN。
传动比
N 型——普通速比;
L 型——慢速速比。
结构形式
A 型——丝杠作轴向移动,不旋转;
B 型——螺母作轴向移动,丝杠作旋转运动。
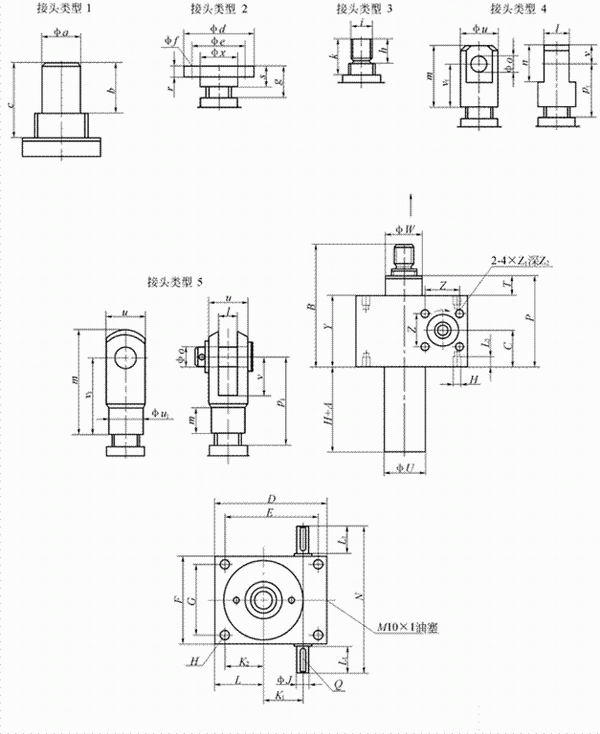
丝杠接头类型
A型结构形式的丝杠头部分为:1型(圆柱),2型(法兰),3型(螺纹),4型(扁头),5型(开口)共五种;
B型结构形式的丝杠头部分为:1型(圆柱),0型(无接头)共二种。
附加要求(可选)
A型结构形式的附加要求有:滚珠丝杠型(B)、带防转装置(P)、带防护罩(S)共三种;
B型结构形式的附加要求有:滚珠丝杠型(B)、带防护罩(S)共二种。
CS系列丝杆升降机型号表示方法:



下一页::SWL螺旋升降机
